Drafting at the FDI

Draughting at the FDI

The past couple of months I have been lucky enough to work with Terry Ackland-Snow and Ray Stanley on the FDI draughting course at Pinewood Studios and gosh has it been a learning curve!

I have a background as a professional fine artist and graphic designer so I am familiar with a lot of the drawing, layout and visuospatial skills required for draughting. But what has been most valuable is learning how to apply these in a film and TV setting. 

Certain things that might seem simple initially, like knowing how to draw a window or a door, are actually a lot more complicated than I first realised. And being able to draw a set from every angle is truly thought-intensive. Add to that the fineries of using the correct visual language to denote a solid wall, the stage floor and detailing, meant I gained a wealth of knowledge from doing this course.

And for anyone who knows Terry, there was the invaluable bonus of hearing about his experiences working in the art department on such greats as Batman, Aliens, Labyrinth and The Dark Crystal, to name a few. Ray has the most fantastic knowledge about product design, architecture and film. It was a pleasure to work with both of them.

For anyone who’s considering doing the course, I couldn’t recommend it more highly. But, a word of advice, when you are there, make the most of your time because it goes so quickly!

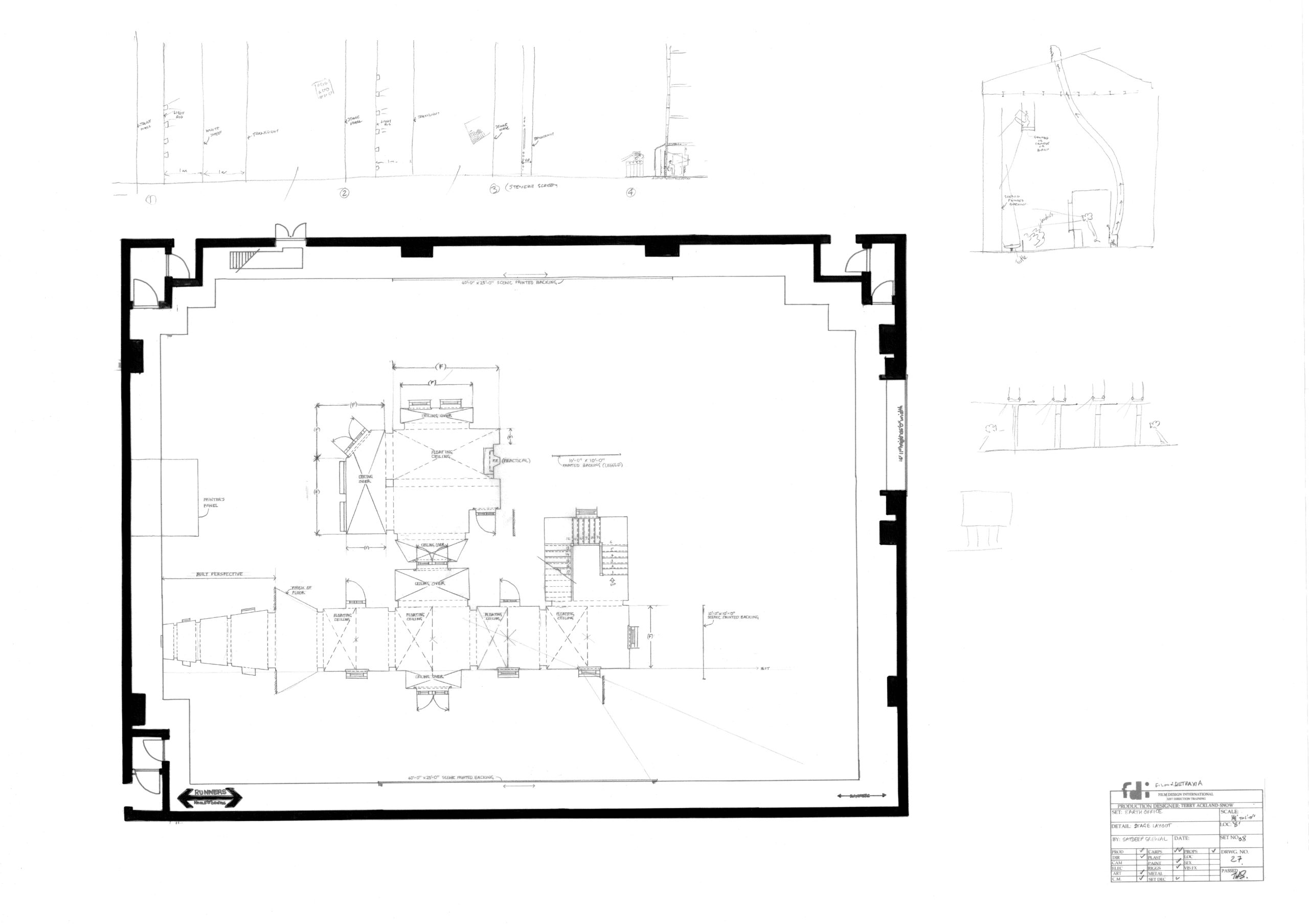
See my work from the course in the images opposite (desktop) / below (mobile).


Staircase string design


Forced perspective corridor model


Door exercise including the design for a spaceship-type door


My design for a modern office set


Staircase exercise


Designing a full set from plan to all elevations and forced perspective.


Transferring a set design into a studio floor plan


Arch exercise


Sash window exercise

Leave a comment